90 mq
2
2
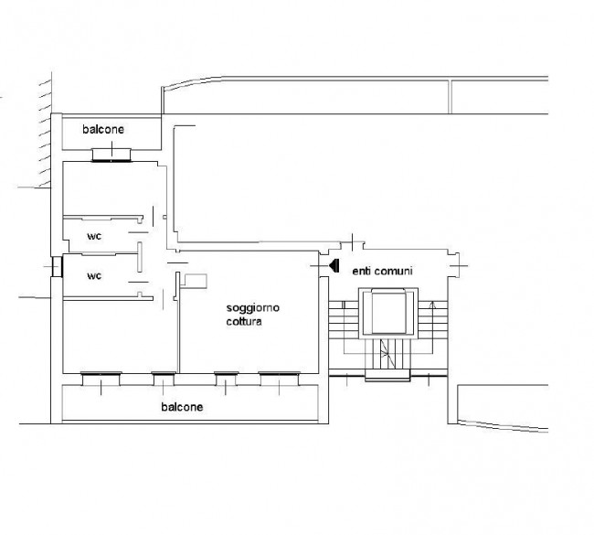
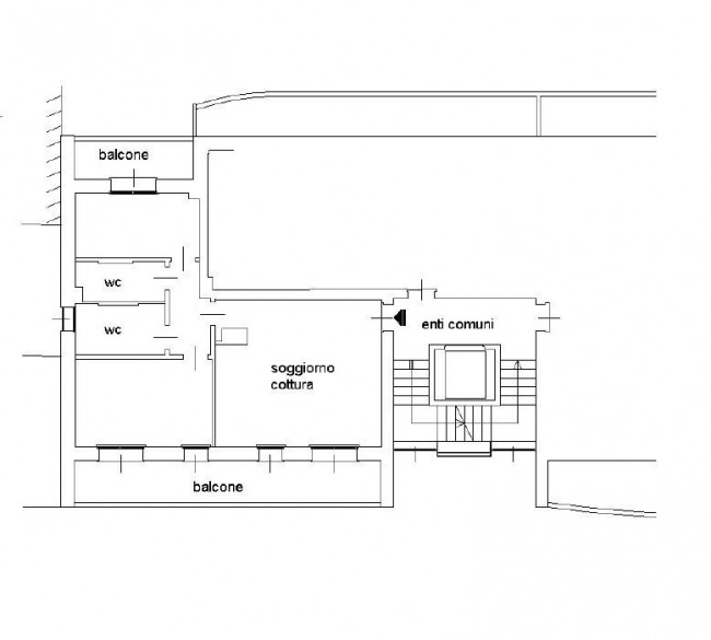
Lo studio immobiliare Mc Domus propone in Vendita elegante 3 LOCALI di circa 90 mq, sito al 3 piano, inserito all'interno di uno dei contesti condominiali di recente costruzione, più richiesti del quartiere Vigentino.
L'Appartamento è così composto:
ingresso in soggiorno con cucina a vista, camera matrimoniale, cameretta e doppi servizi; sono inoltre presenti uno splendido terrazzo al piano, da cui è possibile accedere sia dalla zona giorno che dalla zona notte e un balcone adiacente alla cameretta.
L'immobile gode di un'ottima luminosità grazie alla tripla esposizione.
Completa la soluzione una cantina di pertinenza.
POSSIBILITA' DI POSTO AUTO a EURO 15.000.
Riscaldamento termo - autonomo, infissi in PVC in doppio vetro, pavimentazione in gres porcellanato e parquet, impianto di raffrescamento, videocitofono, porta blindata.
Lo stabile nasce nel 2017 ed è dotato di portineria per l'intera giornata, di un giardino condominiale e di tutti i requisiti e i comfort di una nuova costruzione.
Il complesso è ubicato in una posizione strategica, vicino ai principali mezzi pubblici che collegano rapidamente il centro cittadino, ma allo stesso tempo limitrofo al Parco Agricolo Sud, il quale offre ai residenti un'area di svago e benessere.
Negozi, scuole, supermercati e servizi non mancano, nei dintorni di un quartiere residenziale ben servito, ricco di verde e servizi commerciali, caratterizzato da forme eleganti e signorili, ideale grazie ai numerosi collegamenti ma anche alla rapidità con cui è possibile raggiungere il centro.
La zona, che è oggetto di grande interesse e riqualificazione negli ultimi anni, rende questa soluzione un investimento ideale, grazie alla vicinanza a nuove strutture di spicco, quali Fondazione Prada, la sede di Fastweb, la nuova scuola di lingue ICS Symbiosis, il futuro villaggio Olimpico 2026 e gli ottimi collegamenti con le numerose università milanesi.
Raggiungibile tramite la linea 34 che collega Quartiere Fatima con Via Toffetti passando per la linea MM3 di Brenta, la linea 95 che collega Rogoredo (FS e MM3) con Famagosta (MM2) e il tram linea 24 che collega Vigentino con il Duomo, comodissimo per raggiungere il centro in pochi minuti.
DEVI VENDERE CASA?
CONTATTACI PER UNA VALUTAZIONE GRATUITA e SENZA IMPEGNO!
Per maggiori informazioni rivolgersi allo: 02-55230171

90 mq
2
2